户均约105㎡院子?北区必看别墅红盘的厉害之处不止这一面

来源:头条地产

2023-07-31 16:33

市场越艰难,越考验产品力,房地产市场艰难常态化下,“产品为王时代”已然来临。

    市场越艰难,越考验产品力,房地产市场艰难常态化下,“产品为王时代”已然来临。特别是最近几年,随着改善客群比例不断增大,提升改善产品竞争力已成房企突围的共识,市场不缺房子,更好的体验、更好的环境、更好的产品才能打动客户。

    纵观重庆楼市,在改善产品力PK赛中,究竟哪些选手更出彩?市场上哪款改善产品/项目价值更胜一筹,堪称「最优选」?透过对市场的剖析对产品的观察,我们找到一个答案。

    改善及高端需求保持坚挺跑赢大市

    改善比重持续提升

    复盘上半年楼市,市场真实情况如何?从全国层面看,改善及豪宅成交依然坚挺,各城市改善及豪宅成交同比持增,部分热点城市豪宅成交套数更是翻番。在价格端,上半年,全国70个大中城市房价指数同比维持负增长,与之形成对比的是,改善及高端产品价格坚挺甚至保持可观涨幅,改善及豪宅产品资产增值保值属性持续凸显。

    聚焦重庆,市场情况和全国基本同频,改善和豪宅市场韧性强,改善性需求整体保持相对坚挺。数据显示,2023上半年重庆洋房别墅类产品市场占比超53%,较2018年占比上涨超30个百分点。别墅产品近两年市场份额亦明显提升,重庆改善需求持续上升,改善时代已然来临。

    改善成为“主旋律”

    什么产品更符合改善客群置业观?

    改善成为市场的“主旋律”,归根到底因购房者需求发生了变化,改善需求日益旺盛。随着人们生活水平的不断提升,住不再仅仅是“有得住”而是追求“住得好”,居者对居住空间提出了新的要求,对面积、品质、尺度、功能性等各方面的要求更高,已期获得更优质的居住体验。

    什么产品更能承载改善客群的消费逻辑?热点选项当属别墅产品,原因主要有三:

    其一,改善产品中的别墅,因有天有地有院子、分层而居、独立居住空间互不打扰等显著特性,能更好的匹配不同家庭的改善居住需求,成为优选项。

    其二,相比普通平层住宅,别墅稀缺价值更加突出,产品本身以及外部资源占有的不可复制,决定了别墅资产保值增值性能更强,产品的溢价能力、投资价值更易被高资产人群认可。二手房市场的数据也印证了这一点。数据显示,重庆价格最贵的二手房,是棕榈泉二期、龙湖蓝湖郡西岸、寰宇天下东升府这类别墅。优质的别墅产品在二手房市场不仅价格保持一定高度,更能实现较佳的涨幅,比如常青藤、中渝梧桐郡、龙湖香樟林、龙湖蓝湖郡等等。

    其三,别墅具备显著的高性价比优势,得房率高、赠送高、可使用面积大、大花园、大露台均是高性价比的体现,尤其是在同地段、同面积段楼盘之间,面积更大的花园、露台,如何选?答案不言而喻。

    改善需求高涨,市场竞争亦很激烈。数据显示,上半年重庆中心城区超110盘在售别墅。别墅市场“产品战”卷出新高度,怎样才能脱颖而出?产品永远是核心竞争力,凸显产品的稀缺价值尤为重要,有令人眼前一亮的“标签”方能“出圈”,譬如:对比竞品更大的花园、更大的露台、更高的得房率...优化居住体验,进而增强竞争力、附加值和溢价能力。

    北区必看别墅红盘华宇·御璟首玺

    户均105㎡院子,这个设计足够出类拔萃

    今天,纵观重庆市场,在改善产品力角逐赛中,哪些企业称得上产品力创新升级的优等生?答案真没几个,但行业内外有口皆碑的“产品经理”华宇,算一个!聚焦重庆改善市场,哪款改善产品/项目更胜一筹,买房必看?答案是,华宇·御璟首玺!

图:华宇·御璟首玺叠拼示意图

    底气从何而来?是它扎实且“豪横”的产品功力。单从产品设计来看,华宇·御璟首玺可谓是当下别墅市场上数一数二创新范例。其叠拼,强调“室内空间极致化”,以“有为的大”作为空间准则,摒弃“无谓浪费”,让每个空间都得到极致应用。产品结构创新,规划3+2+1 布局,错落式分布,打造更旷阔的院子空间,实现叠拼六大尺度,从功能、尺度、场景多方面创新设计,塑造墅居空间更好的生活体验:

    ◆大五房:“物以稀为贵”,区域内少有的改善5房产品,属性稀缺有价值。

    ◆大面宽:最大约12.4m大面宽设计,罕见尺度,改变的不仅是空间的舒适度,更是生活方式。

    ◆大开间:约9.2m客厅开间,空间宽阔容纳更多场景需求,全明通透,开阔视野。

    ◆大阳台:约9.2m长阔尺露台,家与天然的连廊,满足更多生活愿望。

    ◆大面积:约120㎡单层面积,超越大平层式的阔绰尺度,带来更精致的空间感受。

    ◆大套房:约32-45㎡大主卧套房设计,功能齐全,提供更强的居住独立性和舒适感。

图:华宇·御璟首玺叠拼示意图

    我们往更深层次剖析华宇·御璟首玺叠拼产品,发现一个“杀手锏”——户均带约105㎡院子,上叠屋顶花园面积约110㎡,下叠入户花园最大面积达130㎡。这样的尺度,这样的院子,在当下的重庆改善市场,可以说是凤毛麟角般的存在,让人大开眼界,更让消费者心动。

    以上叠产品为例,在建面约167㎡空间内,实现了五房以上功能+阳光会客厅+景观阳台+超大星空露台等精细化功能分区,实得⾯积约 315 ㎡,空间拓展率实属难得,而对业主而言,创意发挥的空间和多样性也就更大。

    上叠一梯一户,专属电梯直达自家门口,还原豪宅别墅的享受和生活体验,更能匹配高阶客群的改善需求。

    首层阳光会客厅,约9.2m客厅开间,大横厅设计贯连开发式厨房,近50㎡方正空间,最大程度提升居住品质感,一体化餐客厨厅设计,放大客厅的视觉空间,可实现更多元化的家庭互动功能,空间尺度十分阔绰且全明通透。

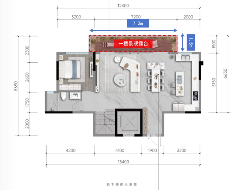
    客厅连接7.2米*1.5米室外景观露台,室外自然美景和室内空间完美交融,最大程度满足一层观景和休闲功能。别墅建筑退台式创新设计,在实现较大的室外自由活动空间同时,也拥有非常好的景观视野。

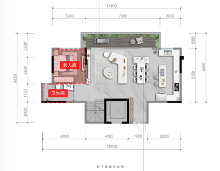
    一楼卧室设计为长辈房最为合适,紧挨卫生间,老人日常洗漱更便捷。一步到位满足多代同堂家庭的居住需求,分层而居,互不打扰,照顾各家庭成员生活的独立性、私密感。

    往上一层走,二楼约45㎡阔绰套房主卧,配置睡眠空间+步入式衣帽空间+卫浴空间+休闲/书房空间,功能强大又兼备舒适度,充分显现主人的尊贵感;独属主人的一方私密天地,连接屋顶花园,清新空气与静谧星空都不再是奢侈。

    二楼除主卧套房外,另可设计为2-3个卧室,实现五房以上功能,每个卧室都拥有极好的采光面,最小的卧室都有约11㎡,对于多孩家庭来说,十分适用,让每位家庭成员都拥有独立的成长空间。连接屋顶花园的室内空间,既可设计为独立的套房式卧室,也可打造为二楼的休闲会客厅,实现二楼室内休闲娱乐与会客的功能。

    最令人惊叹是二楼拥有超大面积的室外延展空间——私家独享约110㎡屋顶花园,对主人来说,这是一个花园更是一个多功能的私属“泛客厅”:可以种花种草,感受绿意自然,打造成高颜值私家花园;可以是室外运动场所,肆意挥洒汗水,唤醒健康活力;可以邀约好友聚集,举办春天的音乐花园,夏日的星空party ,秋日的亲友烧烤,冬日的沙发派对...欢声笑语洋溢。对小孩而言,屋顶花园足够打造成充满趣味的游乐场,肆意玩耍或和萌宠嬉戏,甚至骑自行车都可以;夜幕降临,和父母一起搭起帐篷架起天文望远镜,探索广阔星空的奥秘。


图:华宇·御璟首玺上叠露台效果图

图:华宇·御璟首玺上叠二层效果图

    产品力是关键

    但华宇·御璟首玺“出圈”绝不仅仅靠产品力

    真正可以称之为“买房必看”的改善住宅,产品力是关键,但绝不仅靠产品力说话,华宇·御璟首玺便是如此,城市价值高地、高配置资源、文化底蕴、景观美学的价值优势它都有。

    ◆地段优势:城市价值高地,中央公园北最低密的高端住区

    华宇·御璟首玺择址“重庆第二中心”价值高地中央公园,一直引领城市的置业风向。项目所处的中央公园北区域,更是容积率仅1.5的高端低密住区,享约2300亩中央公园和7大主题公园的绿洲资源,宜居的改善氛围浓郁,生态资源优越性十分明显。

    ◆配套优势:城市高能级资源配套云集

    华宇·御璟首玺的大配套也是重庆市场上数一数二的“高配”级,商业、生活、交通、教育、医疗等各类城市高能级配套云集。毗邻约600万方两江国际商务中心,公园天街、吾悦广场、大悦城均已开业,繁华举步即达;七横五纵五轨道,项目直线距离500米内9、14号线(在建中)双轨交汇,畅达全城;10余所中小学汇聚,包含渝北巴蜀小学,空港新城人和街小学,重庆市第八中学,数据谷中学等;重庆市渝北区人民医院,公立三级甲等综合医院为业主健康护航。

图:华宇·御璟首玺项目周边配套示意图

    ◆文脉底蕴:“宝藏”与“文脉”的福址

    华宇·御璟首玺可谓是中央公园文脉底蕴最浓厚项目,地块不仅发现鱼骨化石,还将“因鱼得灵,遇⽔则兴”的故事线续写,项目示范区以“江波入影”为引,山门为屏, “鱼游浅滩鱼”转承, “鱼跃山居” 切题,时刻延续此地蕴含的深厚文脉底蕴。

图:华宇·御璟首玺地块发现鱼骨化石

图:华宇·御璟首玺示范区连廊实景图

    ◆景观美学:高投入、高审美的景观园林

    华宇·御璟首玺社区景观打造同样“下足血本”,采用华宇“优+体系2.0”景观理念,将社区景观划分为归家、回游、庭聚三大空间,以“5X5专业标尺”将产品细分至颗粒度极小的标准要求,营造室外精神陪伴乐场。恢宏大门,开启尊崇归家礼仪;超1000㎡城市阳台及约500㎡半山会客厅,满足业主户外会客、交流的需求;林下互动天地,以多元化绿植充盈休憩空间,让身心从闹市隐归自然,营造富有体验感与归属感的生活场景,为业主塑造美好休闲体验。

图:华宇·御璟首玺社区景观示意图

    结语:做产品不难,做好产品难,做产品创新更难。透过华宇·御璟首玺,不难看到华宇产品打造雄厚的功底和对产品创新孜孜不倦的追求与实践。

    而华宇用高端产品力和对高端人居的解读,倾力打造出的华宇·御璟首玺也不负众望,带着无数个闪光点:户均105㎡院子、分层而居、空间拓展性强的稀缺叠拼;城市低密宜居的稀缺占位;进守宁静出享繁华的稀缺配套;低密度高审美优景观的稀缺环境...环顾重庆改善市场,华宇·御璟首玺“秒杀”众多竞品,足够惊艳,是当之无愧的北区必看别墅红盘,这样一款改善产品值得大家重点关注。